Spechtbouw
  • Home
  • Koningskerk
  • Projectdocumentatie
  • Interesseformulier
  • Contact
Navigation
Home » Koningskerk

Koningskerk

Projectdocumentatie:
Open het planoverzicht
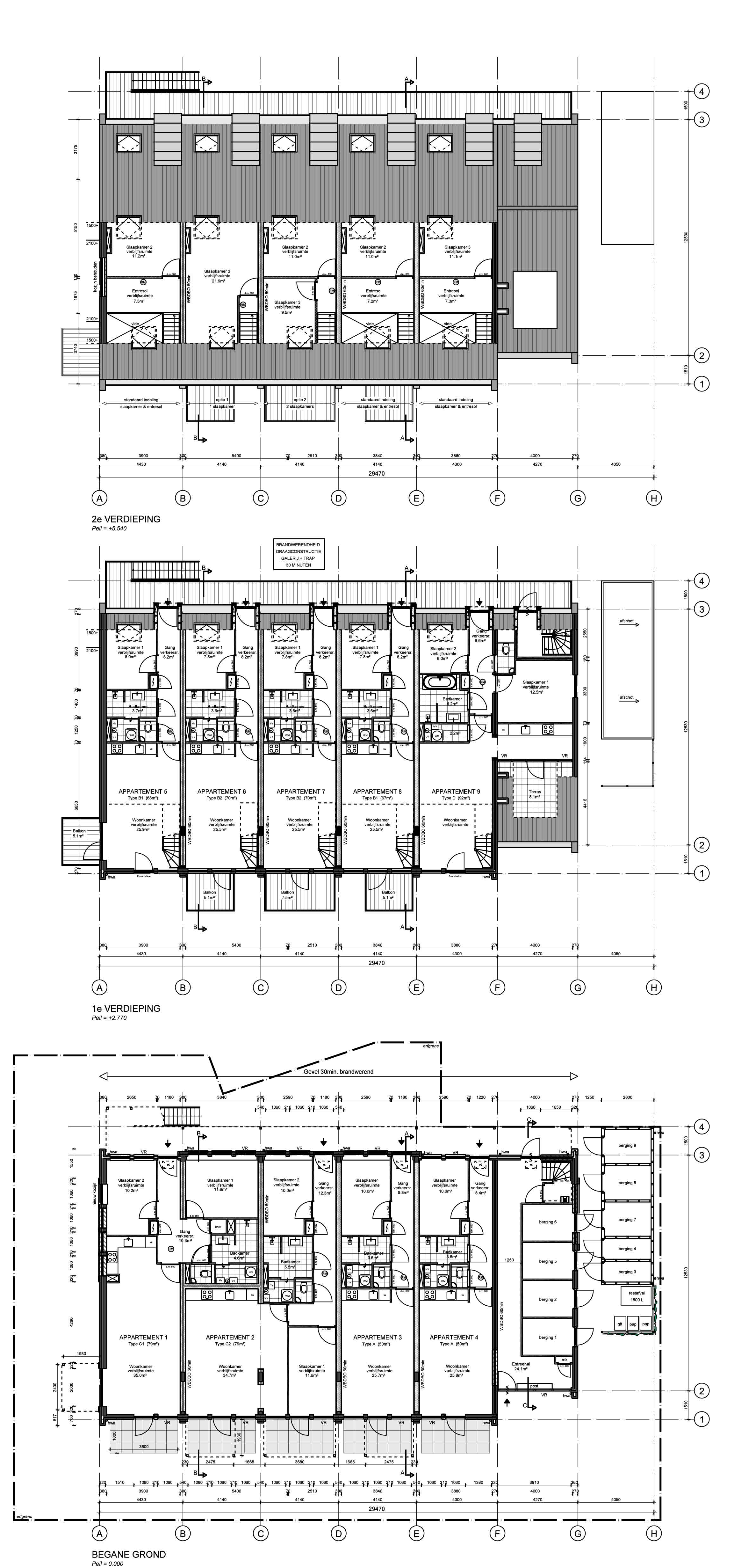
Losse plattegrond
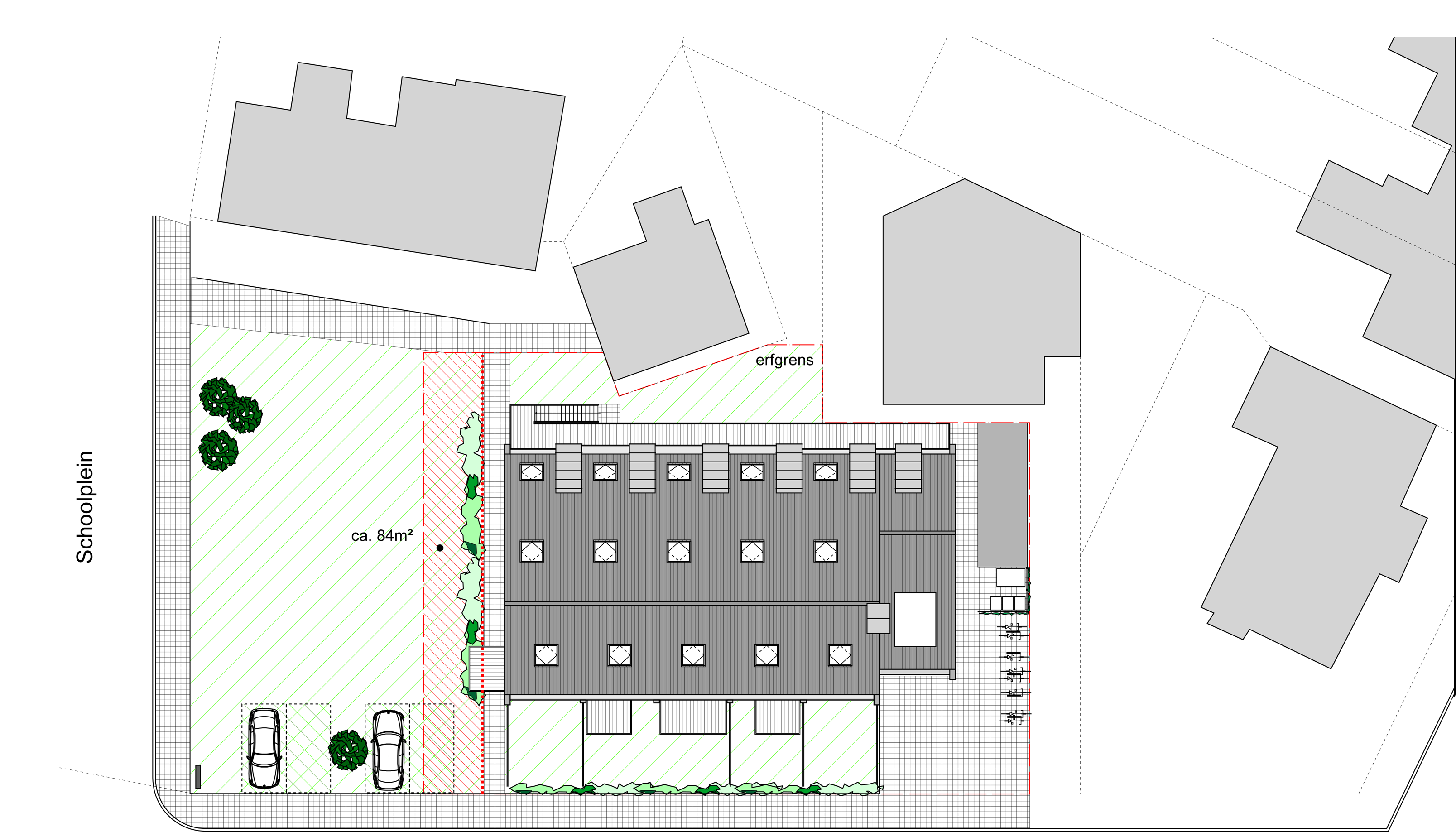
Bovenaanzicht
Doorsnede